SYCAL VENTURES BERHAD
SITIAWAN COMMERCIAL CENTRE
@ Manjung, Perak
SITIAWAN COMMERCIAL CENTRE @ MANJUNG, PERAK
SHOP OFFICE, 2 & 3 STOREY SEMI-D HOUSE
A Prime Investment of Commercial Centre Situated Next to Tesco, Closed To AEON
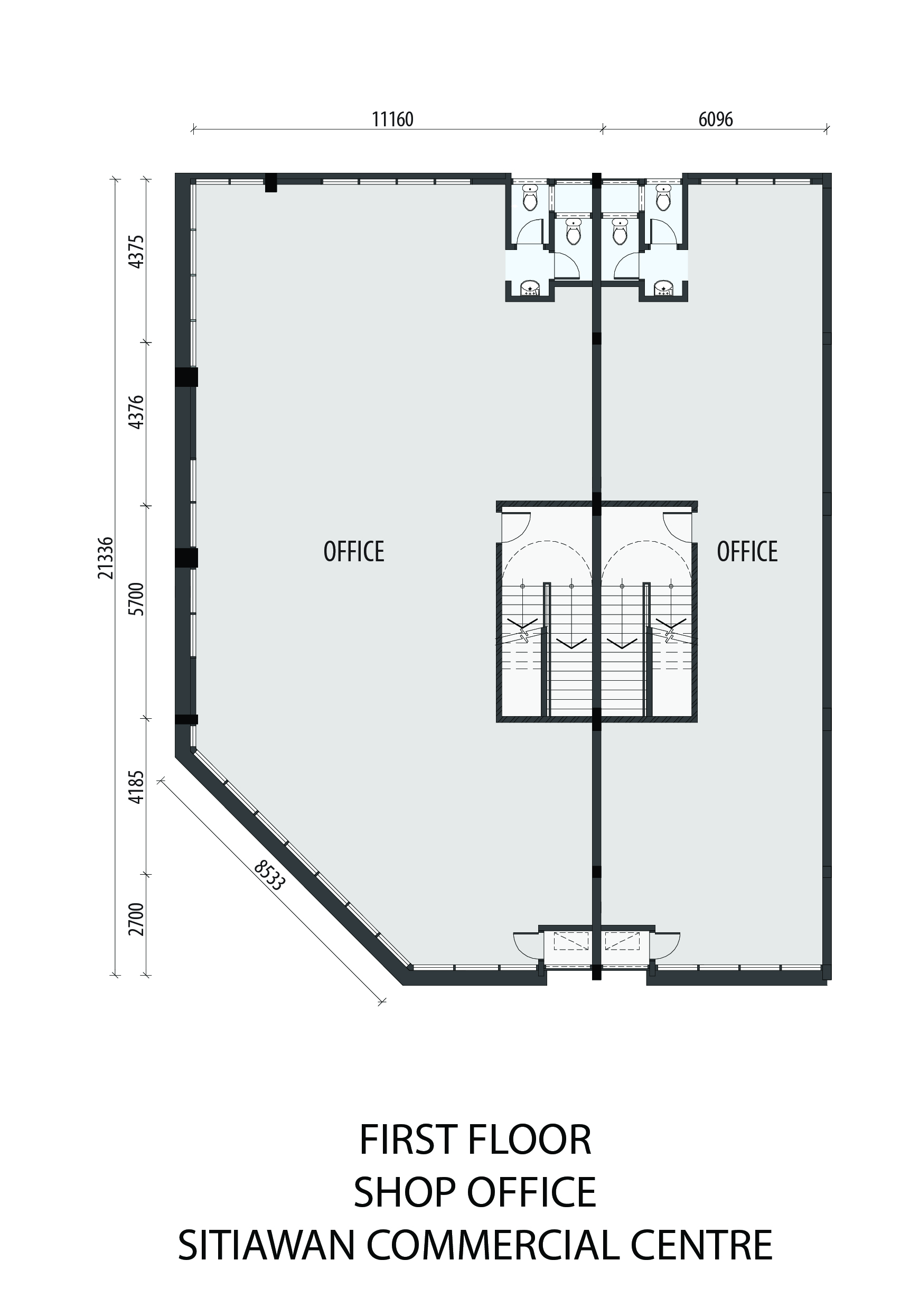
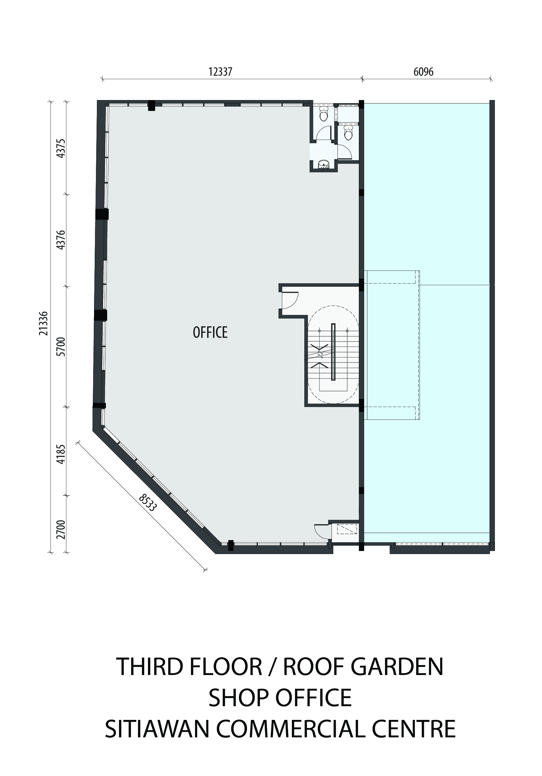
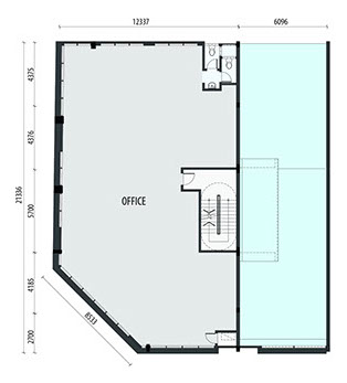
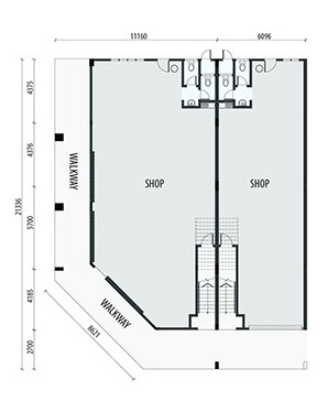
FLOOR PLAN
SPECIFICATION
3 & 4 STOREY SHOP OFFICE
Structure
Brickwork
Roofing
Ceiling
Windows
DOORS
Main Entrance
Others
Lock
FLOOR FINISHES
Shop Area
Office
Toilet
Staircase
Walkway
WALL FINISHES
Toilet
Others Area
Sanitary Fittings
Toilet
Water Closet
Squatting
Wash Basin
Tap Point
Electrical Outlets
Ceiling Mounted Light Points
Signage Lighting Points
13A Switch Socket Outlets
Air-Conditioner Points
Telephone Jack Outlet Point
Emergency Light Points
KELUAR Sign Points
:
:
:
:
:
:
:
:
:
:
:
:
:
:
:
:
:
:
:
:
:
:
:
:
:
:
Reinforced Concrete
Clay Bricks / Cement Sand Bricks
R.C Flat Roof With Waterproof / Metal Decking Roof
Skim Coating And Paint
Aluminium Framed Glass Windows
Solid Timber Door, Aluminium
Timber Flush Doors
Quality Locksets
Cement Render
Cement Render
Ceramic Tiles
Ceramic Tiles
Ceramic Tiles
Ceramic Tiles 7' 0" Height
Emulsion Paint
Type A (3 Storey) Type F (4 Storey)
(Intermediate) (Corner)
3 4
3 4
6 8
10 13
26 57
3 4
18 21
6 12
3 4
10 15
3 6
2 & 3 STOREY SEMI-D
Structure
Wall
Roofing
Ceiling
Windows
DOORS
Main Entrance
Others
Lock
FLOOR FINISHES
Living & Dining
Bedrooms
Bathrooms & Kitchen
Washing Area
Balcony
WALL FINISHES
Bathroom & Kitchen
Others Area
Sanitary Fittings
Bathrooms
Water Closet
Wash Basin
Shower Rose
Tap Point
Single Bowl Drainer Sink
Electrical Outlets
Ceiling Mounted Light Points
Ceiling Fan Points
13A Switch Socket Outlets
Air-Conditioner Points
Water Heater Points
Telephone Jack Outlet Point
MATV Point
Door Bell Point
:
:
:
:
:
:
:
:
:
:
:
:
:
:
:
:
:
:
:
:
:
:
:
:
:
:
:
:
Reinforced Concrete
Clay Bricks / Cement Sand Bricks
R.C Flat Roof With Waterproof / Metal Decking Roof
Skim Coat / Flush Plasterboard
Aluminium Framed Glass Windows
Solid Timber Door, Aluminium
Timber Flush Doors
Quality Locksets
Ceramic Tiles
Laminate Timber Flooring
Ceramic Tiles
Ceramic Tiles
Ceramic Tiles
Ceramic Tiles (Ceiling Heights)
Emulsion Paint
Type A Type B
(2 Storey) (3 Storey)
3 5
3 5
3 5
10 14
1 1
22 30
3 7
17 25
2 3
2 4
1 1
2 3
1 1
FACILITIES
Cinema
Bowling
Karaoke
Restaurant
Hypermarket
.jpg?crc=3995082923)


LOCATION
CONTACT DETAILS
SITIAWAN COMMERCIAL CENTRE @ MANJUNG, PERAK
Padang Sasar, 16049 Jalan Lumut,
Taman Berpadu, Sitiawan 32000 Perak.
Tel : 05-693 9933 (Sales Office)
Contact Person : 016-237 2211 (Joseph)
017-518 1644 (Linda)
012-653 1619 (Eunice (KL)
© 2018 Sycal Ventures Berhad (547651-V) l All Right Reserved
Disclaimer : The information contained in this website is subject to change without notification as may be required by the management and authorities. Whilst every care has taken in providing the information, the management
cannot be held liable for variations. All illustrations and pictures that are artist impression only and the items are subject to variations, modifications and substitutions as may be recommended by management and relevant authorities.