SYCAL VENTURES BERHAD
KLEBANG PERDANA @ IPOH, PERAK
SHOP OFFICE, TERRACE & SEMI-D HOUSE
Next 3rd AEON Shopping Centre In Ipoh
7% Bumiputera Discount
FLOOR PLAN
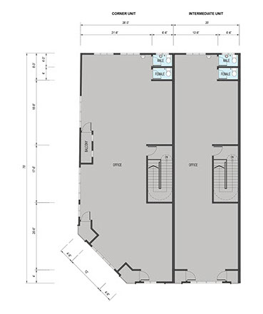
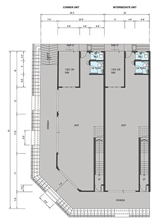
3 STOREY SHOP OFFICE
20' X 70'
Built-up area : 4,200 sq. ft.
GROUND FLOOR
FIRST FLOOR
SECOND FLOOR
SINGLE STOREY TERRACE
20' X 70'
Built-up area : 936 sq. ft.
%20single%20storey%20terrace_ground%20floor-01-crop-u29515.jpg?crc=385519481)
GROUND FLOOR
GROUND FLOOR
FIRST FLOOR
SINGLE STOREY SEMI-D
35' X 75'
Built-up area : 1,177 sq. ft.
GROUND FLOOR
DOUBLE STOREY SEMI-D
35' X 75'
Built-up area : 2,324 sq. ft.
GROUND FLOOR
FIRST FLOOR
SPECIFICATION
3 STOREY SHOP OFFICE
Structure
Brickwork
Roofing
Ceiling
Windows
Doors
Main Entrance
Others
Lock
Floor Finishes
Shop Area
Office
Toilet
Staircase
Walkway
Wall Finishes
Toilet
Others Area
Sanitary Fittings
Toilet
Water Closet
Wash Basin
Tap Point
Electrical Outlets
Ceiling Light Points
Fan Point c/w Fan Hook
13A Switch Socket Outlets
Telephone Point
:
:
:
:
:
:
:
:
:
:
:
:
:
:
:
:
:
:
:
:
:
:
Reinforced Concrete
Cement Sand Bricks
Metal Decking Roof / Reinforcement Concrete Roof
Skim Coating and Fibre Board Ceiling
Aluminium Framed Glass Window
MS Roller Shutter
Timber Door, PVC Door
Quality Locksets
Cement Render
Cement Render
Ceramic Tiles
Cement Render
Floor Tiles
Ceramic Tiles Up To 7' 0"
Emulsion Paint
Type A (3 Storey)
(Intermediate)
6
4
9
22
2
12
3
Type B (4 Storey)
(Corner)
6
4
10
22
2
12
3
SINGLE STOREY TERRACE
Structure
Wall
Roofing
Ceiling
Windows
Doors
Main Entrance
Bathroom
Others
Lock
Floor Finishes
Living & Dining
Bedrooms
Bathrooms & Kitchen
Car Porch
Wall Finishes
Bathroom
Others Area
Sanitary Fittings
Bathrooms
Water Closet
Wash Basin
Shower Rose
Double Bowl Drainer Sink
Electrical Outlets
Ceiling Mounted Light Points
Ceiling Fan Points
13A Switch Socket Outlets
Telephone Jack Outlet Point
MATV Point
:
:
:
:
:
:
:
:
:
:
:
:
:
:
:
:
:
:
:
:
:
:
:
:
Reinforced Concrete
Clay Bricks / Cement Sand Bricks
R.C Flat Roof With Waterproof / Cement Roof Tiles
Skim Coat / Fibre Cement Ceiling
Aluminium Framed Glass Windows
Solid Timber Door
PVC Door
Plywood Moulded Doors
Quality Locksets
Ceramic Tiles
Ceramic Tiles
Ceramic Tiles
Cement Render
Ceramic Tiles (Ceiling Heights)
Plaster & Emulsion Paint
(Intermediate Lot)
2
2
2
1
11
3
9
1
1
(Corner Lot)
2
2
2
1
12
3
9
1
1
DOUBLE STOREY TERRACE
Structure
Wall
Roofing
Ceiling
Windows
Doors
Main Entrance
Bathroom
Others
Locks
Floor Finishes
Living & Dining
Bedrooms
Bathrooms & Kitchen
Terrace & Balcony
Car Porch
Wall Finishes
Bathroom
Others Area
Sanitary Fittings
Bathrooms
Water Closet
Wash Basin
Shower Rose
Double Bowl Drainer Sink
Electrical Outlets
Ceiling Mounted Light Points
Ceiling Fan Points
13A Switch Socket Outlets
Air Conditioner Points
Water Heater Points
Telephone Jack Outlet Point
MATV Point
Door Bell Points
:
:
:
:
:
:
:
:
:
:
:
:
:
:
:
:
:
:
:
:
:
:
:
:
:
:
:
:
Reinforced Concrete
Clay Bricks / Cement Sand Bricks
R.C Flat Roof With Waterproof / Cement Roof Tiles
Skim Coat / Asb. Free Ceiling Sheet
Aluminium Framed Glass Windows
Decorative Timber Panel Door
PVC Door
Timber Door, Aluminium Frame Sliding Door
Quality Locksets
Ceramic Tiles
Ceramic Tiles
Ceramic Tiles
Ceramic Tiles
Cement Render
Ceramic Tiles (Ceiling Heights)
Plaster & Emulsion Paint
(Intermediate Lot)
3
3
3
1
16
3
10
1
1
1
2
1
(Corner Lot)
3
3
3
1
18
3
10
1
1
1
2
1
SINGLE STOREY SEMI-D
Structure
Wall
Roofing Finishes
Ceiling
Windows
Doors
Main Entrance
Bathroom
Others
Lock
Floor Finishes
Living & Dining
Bedrooms
Bathrooms & Kitchen
Terrace
Car Porch
Wall Finishes
Bathroom & Kitchen
Others Area
Sanitary Fittings
Bathrooms
Water Closet
Wash Basin
Shower Rose
Tap Point
Double Bowl Drainer Sink
Electrical Outlets
Ceiling Mounted Light Points
Ceiling Fan Points
13A Switch Socket Outlets
Air Conditioner Points
Water Heater Points
Telephone Jack Outlet Point
MATV Point
Door Bell Points
:
:
:
:
:
:
:
:
:
:
:
:
:
:
:
:
:
:
:
:
:
:
:
:
:
:
:
:
:
Reinforced Concrete Columns
Clay Bricks For Party Wall / Cement Sand Bricks For Others
R.C Flat Roof With Waterproof / Cement Roof Tiles
Skim Coat / Asb. Free Ceiling Sheet
Aluminium Framed Glass Windows
Decorative Timber Panel Door
PVC Flush Door
Timber Flush Door / Aluminium Frame Sliding Door
Quality Locksets
Ceramic Tiles
Ceramic Tiles
Ceramic Tiles
Ceramic Tiles
Cement Render
Ceramic Tiles (Ceiling Heights)
Plaster & Emulsion Paint
Type B
(1 Storey)
3
3
3
1
1
16
6
10
1
1
1
1
1
DOUBLE STOREY SEMI-D
Structure
Wall
Roofing Finishes
Ceiling
Windows
Doors
Main Entrance
Bathroom
Others
Lock
Floor Finishes
Living & Dining
Bedrooms
Bathrooms & Kitchen
Terrace
Car Porch
Wall Finishes
Bathroom & Kitchen
Others Area
Sanitary Fittings
Bathrooms
Water Closet
Wash Basin
Shower Rose
Double Bowl Drainer Sink
Electrical Outlets
Ceiling Mounted Light Points
Ceiling Fan Points
13A Switch Socket Outlets
Air Conditioner Points
Water Heater Points
Telephone Jack Outlet Point
MATV Point
Door Bell Points
:
:
:
:
:
:
:
:
:
:
:
:
:
:
:
:
:
:
:
:
:
:
:
:
:
:
:
:
Reinforced Concrete Columns
Clay Bricks For Party Wall / Cement Sand Bricks For Others
R.C Flat Roof With Waterproof / Cement Roof Tiles
Skim Coat / Fibre Cement Ceiling
Aluminium Framed Glass Windows
Decorative Timber Panel Door
PVC Door
Plywood Moulded Doors / Aluminium Frame Sliding Door
Quality Locksets
Ceramic Tiles
Ceramic Tiles
Ceramic Tiles
Ceramic Tiles
Ceramic Tiles
Ceramic Tiles (Ceiling Heights)
Plaster & Emulsion Paint
Type A
(2 Storey)
4
4
4
1
24
7
16
1
1
2
2
1
FACILITIES
AEON Mall
24 Hours Guarded Community


LOCATION
CONTACT DETAILS
KLEBANG PERDANA - Ipoh, Perak
No.92B, Laluan Klebang Restu 2,
Medan Klebang Restu, 31200 Chemor,
Perak Darul Ridzuan.
Tel : 05-291 7885 (Sales Office)
012-548 5819 (Ms. Low)
017-429 9719 (Mr. Felix)
© 2018 Sycal Ventures Berhad (547651-V) l All Right Reserved
Disclaimer : The information contained in this website is subject to change without notification as may be required by the management and authorities. Whilst every care has taken in providing the information, the management
cannot be held liable for variations. All illustrations and pictures that are artist impression only and the items are subject to variations, modifications and substitutions as may be recommended by management and relevant authorities.